Expressions of Interest – Closing 3pm 27 May 2026
Yatara, Lot, 25 Shearsby Crescent, Yass, NSW 2582
• Over 256 potential dwellings in concept
• 195Ha of land available
• 42ha of R1 zoned residential land
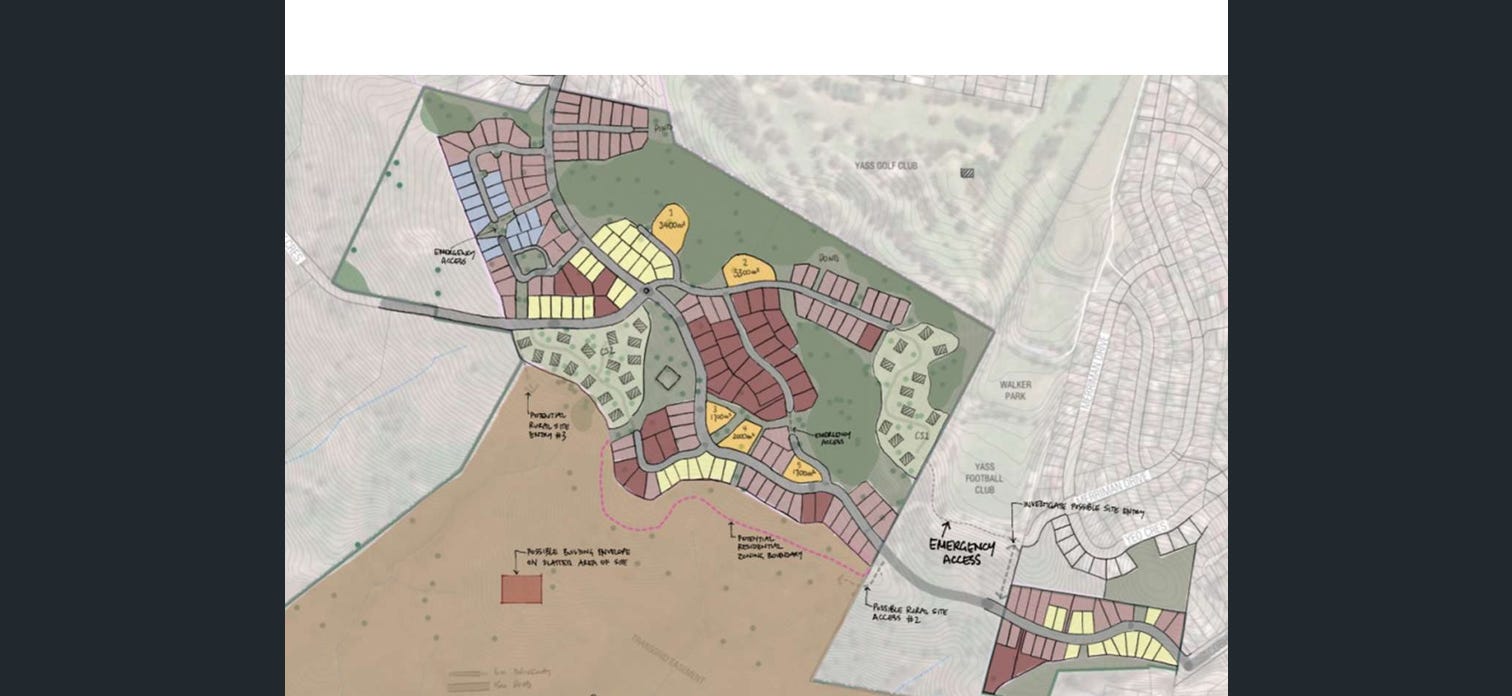
195ha Residential Subdivision Site – Yatara, Yass NSW
Civium Property Group, in conjunction with Johns & Co., are excited to present this unbeatable residential subdivision development opportunity on the southern side of Yass. Yatara comprises of three blocks:
• Lot 5 – which comprises of 126.81 Ha of C4-zoned land, 42.49 Ha of R1-zoned residential developable land and 6 Ha of R5 large lot residential.
• Lot 4 – comprising of 15.29 Ha of R5-zoned land.
• Lot 104 – comprising of 4.85 Ha of R1 and RE1 land.
The R1-zoned (residential) land is elevated with a northerly aspect and includes open areas with views across Yass. The C4-zoned portion is mostly cleared and contains timbered woodland across approximately 126.81 hectares.
The site adjoins a range of local uses: an electrical substation to the south, Walker Park to the east, Yass Golf Course to the north and rural residential land to the west. The land adjoining Yass Golf Club is zoned for, and would be the ideal setting for, residential land subdivision and development.
A current concept plan outlines the potential for residential development across the main parent lot (Lot 5) and other R1‑zoned areas. The plan suggests around 256 dwellings made up of standard residential lots, cluster housing and possible medium‑density options within a community‑title layout. There is also the possibility of incorporating adjoining land to increase the overall development area and dwelling yield. There are over 200 single title residential blocks in this initial concept.
A current concept plan for the potential development suggests around 256 dwellings made up of standard residential lots, cluster housing and possible medium-density options within a community-title layout. There is also the possibility of incorporating adjoining land to increase the overall development area and dwelling yield. There are over 200 single title residential blocks in this initial concept.
Being sold via Expressions of Interest, closing 3pm 27 May 2026
While every effort has been made to ensure the accuracy of the information provided herein, no warranty is given, and interested parties should undertake their own investigations to verify all details. This business is independently owned and operated by Johns & Co Real Estate (ABN 29 684 848 977).
Contact Selling Agent
Dominic Johns
0481 211 767
dominic@johnsandco.com.au
Andrew Smith
0409 600 471
andrew.smith@civium.com.au




